ConstruNext hace realidad el proyecto de Daniel Poch (DPoch Studio) en Sutton de Barcelona mediante impresión 3D
La industrialización resuelve un proyecto de diseño interior en una discoteca
Es uno de las locales de ocio nocturno más importantes del mundo y el pasado verano, coincidiendo con su 25º aniversario, los responsables de la discoteca Sutton en Barcelona decidieron hacer un restyling completo al interior del establecimiento. El uso de la impresión 3D ha permitido completar el diseño interior en un tiempo récord.
El cierre de la discoteca durante el período estival fue una de las premisas de un proyecto donde la industrialización ha sido la única alternativa para cumplir plazos y dar respuesta a las necesidades de reforma integral de su icónico diseño interior, para renacer en tan solo 7 semanas y 5 días, por debajo de las expectativas marcadas en 8 semanas.
La icónica discoteca Sutton, uno de los referentes indiscutibles del ocio nocturno en Barcelona, había retrasado 1 año su rehabilitación total, para adaptarse a las nuevas necesidades, tanto en interiorismo como en interacción audiovisual y lumínico, acorde con la nueva tendencia mundial.
Bajo el diseño de Daniel Poch de DPoch Studio, ConstruNext, empresa ganadora de la licitación convocada por la sala replanteó el proyecto desde cero, reformulando soluciones técnicas, tiempos y procesos para asegurar viabilidad, eficiencia y precisión. De este modo, la obra comenzó el 4 de agosto y se entregó el 26 de septiembre, lista para reabrir en fin de semana y optimizar al máximo la recuperación de ingresos.
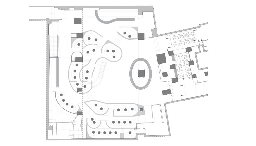
La intervención ha supuesto una transformación total: demolición completa del interior, renovación integral de todas las instalaciones, revestimientos, iluminación y una nueva propuesta estética. El elemento central del nuevo diseño es el mobiliario curvo, que ahora define la distribución del espacio.
Para lograr esta precisión en un plazo tan reducido, ConstruNext empleó la digitalización para poder ir construyendo en paralelo en los distintos talleres especializados para cuando se cerrara el local solo se tuviera que montar las piezas fabricadas en 3D.
Para ello, se realizó un escaneado topográfico milimétrico del local y digitalizó con tecnología BIM todo el proyecto. Además, la constructora se alineó con partners estratégicos superponiendo las tareas en distintos talleres profesionales coordinando y planificando toda la operativa.
La prefabricación, clave del proyecto
No obstante, la clave del éxito del proyecto fue la prefabricación en hormigón 3D de todas las piezas curvas para la nueva configuración espacial, reduciendo los plazos de ejecución respecto a procesos de albañilería tradicional en obra ‘in situ’.
La metodología del proyecto combinó Design Thinking para replantear necesidades y soluciones, Lean Construction para maximizar eficiencia y eliminar desperdicios, y Agile para impulsar una ejecución flexible y acelerada.
Esta estrategia del proceso constructivo no solo redujo tiempos y aseguró la calidad, garantizando certidumbre al proyecto y abriendo una nueva alternativa en el diseño interior mediante métodos de prefabricado en impresión 3D de hormigón que, en esta ocasión, ha suministrado la startup catalana Aridditive.
Una revolución tecnológica se manifiesta en la fabricación y montaje de los bancos curvos que colman la zona VIP del local. Para ello, se han fabricado piezas de 1 y 1,20 metros para facilitar su traslado e instalación en el interior de la sala. En paralelo a su producción se ha trabajado en paralelo con carpintería y tapicería con una precisión milimétrica para luego ensamblarlo en obra evitando contratiempos.
En total, se han fabricado casi 230 módulos en 3D porque, además de los sofás, también han servido para la construcción de las nuevas barras, que integran las instalaciones; así como la nueva cabina del DJ que cambia de ubicación para situarse en el eje central de este renovado y espectacular espacio. Para completar el diseño se revistieron en madera, incluyendo elementos decorativos e instalaciones para la iluminación.
Incluso los alzados para crear distintos niveles en la zona VIP de este local también se realizaron por métodos industrializado a partir de paneles de homigón en 3D. Una estrategia constructiva que no solo ha permitido resolver de forma eficaz un reto arquitectónico, sino también cumplir con los plazos previstos de finalización de la obra.
De izquierda a derecha: Toni Cano, Marketing & Comunicación en Sutton; Joaquín Frigola, CEO de ConstruNext; y Robert Massanet, director de Sutton Club. Foto: Job Vermeulen.
Toni Cano, impulsor de otros locales emblemáticos como Gatsby, Bikini o Imperator, abre una nueva etapa para Sutton, como uno de los iconos de la escena nocturna barcelonesa. La sala ha logrado posicionarse en el puesto 12 de la lista The World’s 100 Best Clubs 2025, pero tras la reforma integral es muy probable que en 2026 ascienda varias posiciones.
“Esta obra da respuesta a las nuevas tendencias del mercado que exige mayor despliegue tecnológico, para estar entre los mejores clubs del mundo. El resultado es un local espectacular en todos los sentidos, donde destaca un espectáculo inmersivo único cada noche, gracias al despliegue lumínico y las innovaciones en este campo”, reconocía Robert Massanet, director de Sutton Club.
Por su parte, Joaquín Frigola, CEO de ConstruNext, añadía que este proyecti “ha sido un aprendizaje que pone de relieve que cuando se rediseña todo el proceso constructivo, los límites desaparecen. Completar una reforma integral en siete semanas y cinco días solo es posible aplicando reingeniería real, prefabricación y una metodología Lean rigurosa”.
FICHA TÉCNICA
- Reingeniería y ejecución de obra: ConstruNext.
- Diseño interior: Dani Poch (DPoch Studio).
- Superficie: 1.500 m².
- Equipamiento audiovisual:
- Pantalla central LED 3.600 x3.600.
- Side Banner 1.800 x 360.
- Iluminación 44 unidades Pulse Orfeo 300.
- Iluminación 55 unidades Pulse Thor.
- Sonido SFX System, IS10P, Point 12, PC5 y IS7C.




























