Green House convierte el exterior en una estancia habitable
La intervención por parte de Anna y Eugeni Bach (Bach Arquitectes) en la vivienda privada Green House replantea la relación entre el interior y el exterior en una vivienda de dos plantas situada en los bajos de un edificio entre medianeras, transformando el jardín en un espacio central de la vida doméstica y desplazando los usos tradicionales para aprovechar al máximo la luz y el clima mediterráneo.
Disfrutar del espacio exterior se convierte en el eje vertebrador del proyecto. Cocinar, comer y compartir el día bajo la sombra de un ficus preexistente, cuya estancia al aire libre se concibe como una habitación más de la vivienda. Esta es la ambición de una reforma que busca integrar el jardín en la rutina cotidiana, cuya actuación transforma este espacio exterior en un oasis doméstico dentro del tejido urbano, capaz de absorber buena parte de la actividad diaria, gracias a su relación directa con el interior.
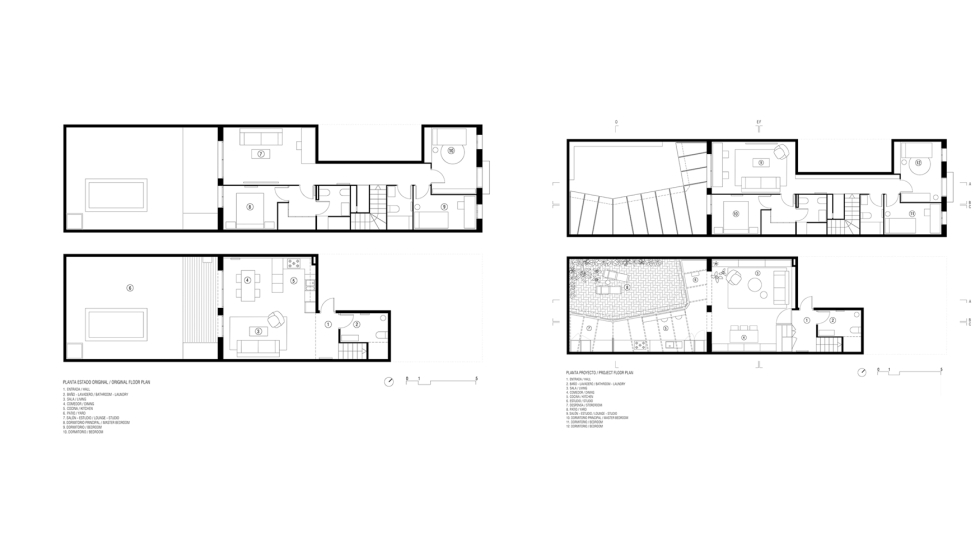
La vivienda original contaba con cocina y comedor en planta baja, vinculados al jardín, y con los dormitorios en la planta superior, pero carecía de un espacio específico para alojar una sala de estar. La demanda de los propietarios era clara: reformar y ampliar la casa para incorporar un salón en contacto con el exterior.
La propuesta, sin embargo, reformula el planteamiento inicial y desplaza la cocina al jardín, liberando superficie interior para alojar el salón y el comedor. Este cambio de uso permite que todas las estancias principales de la planta baja mantengan una relación directa entre sí y con el espacio exterior, generando visuales largas y continuas que refuerzan la sensación de amplitud.
La ampliación se materializa mediante un nuevo volumen ligero, construido con estructura de madera y cerramientos de vidrio, que funciona como una galería o invernadero. Su implantación responde a las condiciones específicas del lugar, donde la sombra proyectada por el propio edificio y las construcciones colindantes evita una insolación excesiva. La transparencia del volumen garantiza, además, que la luz natural siga penetrando en el resto de la planta baja, preservando la luminosidad original de la vivienda.
La nueva fachada se retranquea respecto a la alineación de la finca, dejando visibles los dos arcos que anteriormente delimitaban el interior de la casa y que ahora actúan como umbral entre el salón-comedor y la nueva galería que alberga la cocina y un espacio de trabajo. Este gesto libera a la ampliación de las restricciones formales del edificio existente y permite introducir pequeñas inflexiones en la envolvente, optimizando el espacio en las zonas de mayor uso tanto en el interior como en el propio jardín.
En la planta primera, la intervención se reduce a ajustes puntuales en el mobiliario de los dormitorios y a la reorganización de la sala-estudio, con una voluntad clara de minimizar las actuaciones y preservar aquellas áreas que no requerían una transformación funcional. El resultado es una vivienda que reordena sus usos para intensificar la relación con el exterior, donde el jardín deja de ser un espacio residual y pasa a convertirse en el corazón habitable de la casa.
Ficha Técnica
- Autor: Anna & Eugeni Bach - Bach arquitectes.
- Fecha de finalización de la obra: 2024.
- Superficie construida: 150 m2.
- Promotor: Privado.
- Constructor: Restyle Works SL.
- Emplazamiento: Sants (Barcelona).
- Fotografías: Eugeni Bach.






















