Está previsto que el polígono esté operativo para diciembre de este año
Gesturcal desarrolla la fase II del polígono industrial en Aguilar de Campoo en Burgos
Redacción Interempresas21/06/2008
21 de junio de 2008
La empresa pública gestora de suelo dependiente de la Consejería de Economía y Empleo de Castilla y León, Gesturcal, tiene previsto desarrollar la segunda fase del polígono industrial que se asienta sobre unos terrenos situados al pie de las carreteras Palencia-Santander y Aguilar de Campoo-Burgos, que son contiguos al polígono actual.
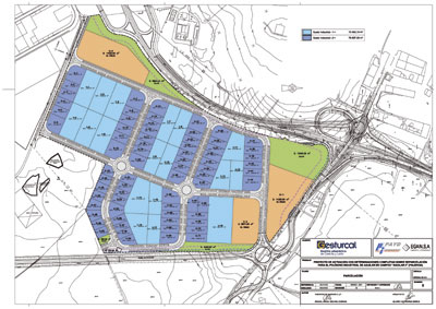
La superficie bruta de los terrenos del nuevo polígono será de 271.203'76 metros cuadrados. El acceso al polígono está resuelto desde la carretera Palencia-Santander, mediante un puente construido expresamente para la urbanización, y tendrá fácil acceso desde las nuevas autovías en construcción (Palencia - Santander y Aguilar - Burgos).
Las obras se adjudicaron el pasado mes de octubre, el 17 de diciembre se firmó el acta de replanteo y está previsto que el polígono esté operativo para diciembre de este año, con lo que se habilitarán 28 hectáreas de suelo para el asentamiento de empresas. El aprovechamiento máximo del sector es de 135.371 metros cuadrados.
De acuerdo con los estudios económicos realizados, la inversión total prevista para el desarrollo completo del polígono se situará en el entorno de los 8.907.907 euros. La inversión prevista para el año 2008 es de 5.169.606 euros.
Superficies del documento del Plan Parcial modificado
El 10.30 por ciento de la superficie total está destinado a la zona verde y espacios libres del polígono (27.930 metros cuadrados), el 56,33 por ciento está destinado a las parcelas industriales con un total de 152.760'03 metros cuadrados , el 13,93 por ciento corresponde al dotacional público y privado con un total de 37.786 metros cuadrados y, por último, el 19,44 por ciento está destinado a los aparcamientos con un total de 52.727 metros cuadrados.







