‘Terrazas para la vida’ propone una nueva forma de habitar
‘Terrazas para la vida’ fue el lema del proyecto ganador del concurso de 40 viviendas sociales, organizado por el Ayuntamiento de Barcelona en plena pandemia del covid. En las bases del concurso se especificaba que se debía construir el edificio de forma más rápida y ecológica para combatir la crisis habitacional y climática, dando respuesta a las nuevas exigencias procedentes de Europa.
Por este motivo, el proyecto se ha desarrollado con una estructura industrializada de madera laminada entrecruzada (CLT), con una altura de ocho plantas, que ha permitido realizar una estructura con emisiones de CO2 negativas.
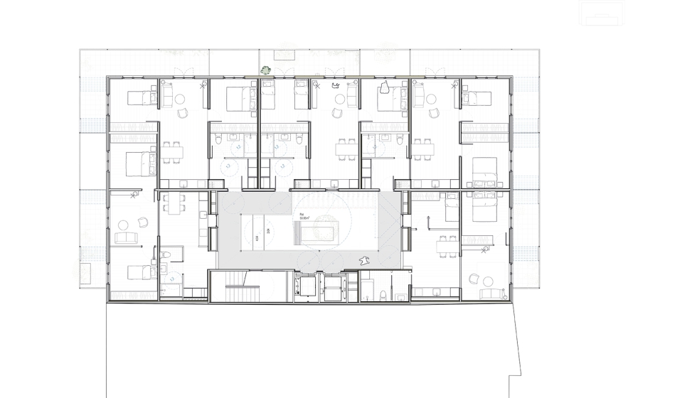
El edificio se organiza alrededor de un patio central, de forma que todas las estancias de las viviendas tienen fachada al exterior y cuentan con grandes terrazas donde poder realizar parte de la vida doméstica al aire libre, poniendo énfasis en el concepto de generar comunidad.
El edificio cuenta con 40 viviendas, con una superficie aproximada de 60 m², y cada una de las unidades habitacionales, se han diseñada bajo criterios de eficiencia energética y confort ambiental. De este modo, las estancias están orientadas hacia el exterior, para favorecer la iluminación natural y la ventilación cruzada, incidiendo no solo en la sostenibilidad del edificio, sino en la salud de sus habitantes.
Precisamente, coincidiendo que el proyecto surgió tras la crisis por la covid, uno de los elementos distintivo del proyecto radica en la incorporación de terrazas habitables de 1,80 m que, a su vez, han sido concebidas como una prolongación del espacio doméstico. Además de actuar como reguladores térmicos, también se convierten en espacios de interacción vecinal creando, son solo un verdadero sentimiento de comunidad, sino una estrategia en salud emocional de sus usuarios.
Prototipo de agricultura vertical
Uno de los aspectos más innovadores de este proyecto es que cuenta con un invernadero solar en la cubierta, que permite producir alimentos y energía en el propio edificio mediante un sistema de bandejas de seis metros de altura, que cuenta con riego centralizado e iluminación LED, pensado como un prototipo de agricultura vertical que se pueda instalar en otros edificios urbanos.
La envolvente del volumen, de más de ocho metros de altura, es de cristal y tiene una superficie fotovoltaica semitransparente que genera la energía necesaria para abastecer los elementos comunes del edificio y el sistema de LED. Además, una serie de árboles frutales, situados en el perímetro de la terraza, convierten este espacio en un área de relación para la comunidad y de esparcimiento al aire libre. Mientras que en la planta baja se situará un casal de barrio que se construirá en los próximos meses.
‘Terrazas para la vida’ es una iniciativa resiliente de Urbanitree, con los arquitectos Vicente Guallart y Daniel Ibáñez con un fuerte compromiso por la regeneración urbana. De hecho, sostenibilidad y tecnología se unen para generar modelos replicables y proponer un modelo de vivienda pública que produce más de lo que consume, potencia el capital comunitario y promueve la biofilia arquitectónica.
FICHA TÉCNICA
- Nombre del proyecto: Terrazas para la vida.
- Autores proyecto: Urbanitree (Vicente Guallart y Daniel Ibáñez).
- Arquitectura: Vicente Guallart, Daniel Ibáñez.
- Aparejador: Óscar Rodríguez Navas / Roger Vila Soler (Arquitectura Tècnica Sequoia, SLP).
- Ingeniería (Estructura / Acústica / Instalaciones:
- Estructura: Miguel Ángel Rodríguez Nevado.
- Acústica: Audiotec.
- Instalaciones: Eletresjota Tècnics Associats, SLP
- Equipo de proyecto: Arquitectos responsables / Dirección de Obra / Dirección Técnica / Control de Calidad...
- Arquitectos responsables: Vicente Guallart, Daniel Ibáñez.
- Dirección de obra: Vicente Guallart, Daniel Ibáñez.
- Dirección Técnica: Arquitectura Tècnica Sequoia, SLP.
- Control de Calidad: Dalmau Morros Tècnics, SLP
- Colaboradores (Empresas consultores: Estructuritas / paisajistas / Light Designers...):
- Estructura: Miguel Ángel Rodríguez Nevado.
- IAAC: Invernadero.
- Instalaciones y Cert. Energética: Eletresjota.
- Telecomunicaciones: Albert Farré + Corbera.
- Geotecnia: Neotest.
- Acústica: Audiotec.
- Emplazamiento: Sant Martí, Verneda i la Pau, Barcelona.
- Cliente / Promotor: IMHAB – Instituto Municipal de la Vivienda y Rehabilitación de Barcelona.
- Contratista: CSA Obras e Infraestructuras, SAU (Grupo Sorigué).
- Superficie: 423 m² (Parcela), 60 m² por vivienda, 40 viviendas.
- Presupuesto Coste m2:
- Coste total estimado: 1.314 €/m² útil.
- Viviendas: 1.886 €/m² útil.
Locales: 788 €/m² útil.
Fotografía: Adrià Goula.
INDUSTRIALES:
- Carpinteria exterior: Carmave.
- Cerrajería: Fresat - Eco-System.
- Vidrio: Carmave.
- Cubierta e impermeabilizaciones: Xilonor (estructura) / Impera (impermeab.).
- Solados y alicatados: Garro.
- Instalaciones: Astrocat (clima), Eletresjota, Innolec.
- Climatización: Astrocat (aerotermia).
- Saneamiento: Innolec (aguas pluviales).
- Aparatos sanitarios y grifería: Garro.
- Carpinteria interior: Carré.
- Pinturas: Tecma / Tecnipin.
- Pavimentos y revestimientos interiores: LMT Suelo Técnicos.
- Tabiques y techos: Knauf.
- Ascensores: Orona.
- Equipamiento, mobiliario y complementos: Bodelec (cocinas) / MPV (encimeras).
- Varios:
- Bandejas (El Cedre).
- Jardineras (Perfyplast).
- Zócalos (Discopolymer).
- Buzones (Tayme).





























