La combinación entre hormigón y elementos industrializados resuelven un edificio plurifamiliar entre medianeras
Las construcciones de hormigón en combinación con sistemas industrializados dan como resultado edificios de uso privativo, como el que ha proyectado LAOS Arquitectura en Vallirana (Barcelona). Una finca entre medianeras que, mediante el uso de elementos industrializados en fachadas y cierres, se combinan a la perfección con una estructura sólida de hormigón; mientras que los elementos cerámicos contribuyen a convertir esta construcción plurifamiliar en una residencia eficiente energéticamente.
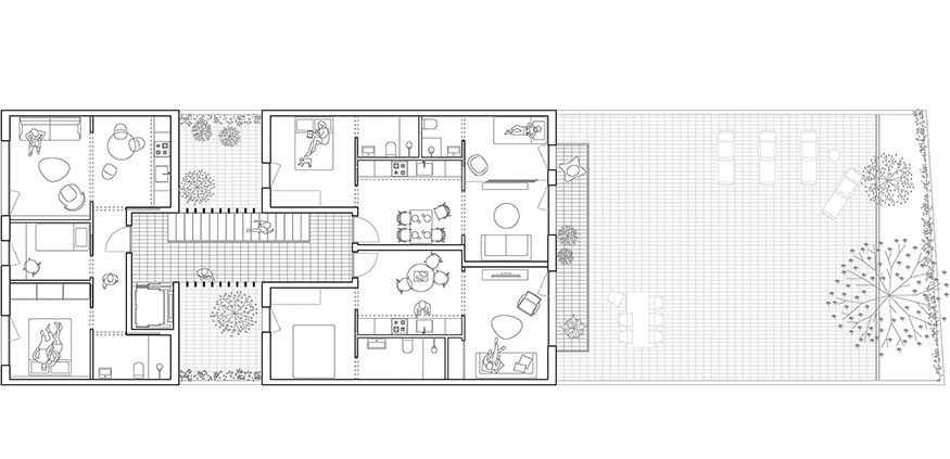
Este edificio plurifamiliar es un ejemplo reciente de cómo ejecutar de forma eficaz un proyecto de obra nueva complejo, mediante sistemas industrializados. Se trata de una construcción de planta baja + 3 pisos sobre rasante, además de un aparcamiento soterrado, que se ha ejecutado
El edificio se ha ejecutado con estructura de hormigón armado realizado ‘in situ’ conjuntamente con un sistema completamente industrializado de cierres de fachada y cierres interiores, mediante paneles de cartón yeso y paneles de cemento.
En cambio, en las zonas comunes están planteadas para que estén abiertas al exterior. Por ello, disponen de un pavimento propio de un espacio público, con la voluntad de dar continuidad del exterior hacia el interior de las viviendas. Además, las celosías cerámicas laterales garantizan la ventilación e iluminación como si se tratara de un espacio exterior.
La superficie de las viviendas se ha optimizado en la medida del posible, pero permitiendo siempre visuales cruzados que aporten luminosidad y longitud en el interior de las diferentes unidades residenciales.
Complejidad constructiva entre medianeras
No obstante, la complejidad de su estructura ha recaído, especialmente, en el diseño y ejecución de su sótano, ya que se trata de una finca entre medianeras, que requería un espacio bajo rasante de nueva construcción, para que actúe como zona de aparcamiento de la finca. De este modo, los cimientos de los vecinos quedan por encima de estos de nueva construcción.
Además, se ha tenido que ejecutar mediante apuntalamientos provisionales, para que el hormigón lograra una resistencia mínima para poder colaborar estructuralmente. Una vez hormigonada y endurecida el techo del sótano, consistente en una losa maciza, la estructura en forma de ‘caja’ ofrece unas altas prestaciones en términos de seguridad y resistencia.
La finca, situada en el casco antiguo de esta localidad próxima a la ciudad de Barcelona, ha buscado, a su vez, mimetizarse con las edificaciones preexistentes. De este modo, la fachada se adecua a los colores del entorno incorporando un retranqueo, que adecua el edificio en la escala de las viviendas del entorno, de 5m de ancho entre medianeras.
FICHA TÉCNICA
- Nombre del proyecto: Edificio de siete viviendas y aparcamiento en Vallirana.
- Arquitectura: Laos Arquitectura (Xavier Botet + Albert Saboya).
- Diseño interior: Laos Arquitectura (Xavier Botet + Albert Saboya).
- Aparejador: Bam7Tècnics.
- Ingeniería (Estructura / Acústica / Instalaciones): Estructura: Jordi Payola; Instalaciones: AGA Enginyeria.
- Coordinación de seguridad y salud: Mar Carrero Blanco.
- Project Management: Bam7Tècnics.
- Proyecto de Actividades: AGA Enginyeria.
- Colaboradores (Empresas consultores: Estructuritas / paisajistas / Light Designers...): Estructura: Jordi Payola.
- Emplazamiento: Vallirana (Barcelona).
- Cliente / Promotor: Privado.
- Contratista: Atyca S.L.
- Fecha Proyecto: 2020
- Fecha Construcción: Inicio y final de obra 2021-2022
- Superficie: 880 m2
- Fotografía: Del Rio Bani.
INDUSTRIALES
- Carpinteria exterior: Aluminium Congost.
- Instalaciones: Instal·lacions Cardoner 3 S.L.
- Aparatos sanitarios: Roca.
- Grifería: Tres.
- Ascensores: TK Elevadores España S.L.U.
- Cocinas: Fusteria Ivern.
- Celosía cerámica fachada: Ceràmica Ferrés.
- Fachada industrializada: Knauf Aquapanel.
- Pavimento zonas comunes: Breinco, Llosa Vulcano.





























