Interempresas.net

Inmobiliaria industrial
  1. Industrial Real Estate
  2. Naves en alquiler in Granollers
  3. Offer Nave industrial en alquiler [2091] Granollers Londres, 18

Detalles de offer de Nave industrial en alquiler [2091] (0/3307092)

ClassificationVallès Oriental / Barcelona (Naves alquiler)
NameNave industrial en alquiler [2091]
Customer reference2091-A
CityGranollers
Industrial parkLondres, 18
Surface11.671 m2
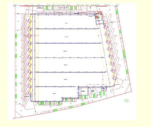
DetailsNave Industrial de reciente construcción (año 2018), situada en el Polígono Palou Nord de Granollers. Buenas comunicaciones mediante la Autovía C-17 y las Autopistas C-33 y AP-7. Dispone de un sector dedicado a producción de 6.465,04 m2 en riesgo bajo 1 y 3 sectores de almacén de 883,53 m2, 963,93 m2 y 745,29 m2 en riesgo medio 5. El diseño inicial de la nave preveía 19 muelles de carga, solo se ejecutaron 3, pero se pueden recuperar una parte de los previstos. Se está valorando la posibilidad de preparar toda la nave para riesgo alto con la instalación de rociadores, depósito y bombas. Estructura y cerramientos de hormigón. Cubierta tipo Deck. 3 muelles de carga. 3 puertas TIR. Iluminación LED. Seguridad contraincendios (Bie's). Sala carga para toros. Sala bombas Bie's. Depósitp Bie's. La nave dispone de ascensor de 6 plazas. Vestidores y aseos para hombres y mujeres. Comedor. Certificado eficiencia energética "A". Instalación de datos y de telefonía. Climatización (bomba de calor). ET propia. LA NAVE ESTARÁ DISPONIBLE A PARTIR DEL 1 DE MAYO 2026.Nave aislada C. Muelle carga y descarga. Ascensor. Oficinas. Divisiones en oficinas. Comedor. Aseos. Vestuarios. Luminarias. Calefacción nave. Seguridad Contraincendios. Patios parking. Electricidad. Agua. Teléfono. Estructura hormigón. Puerta TIR. Bie´s
Price 79.363 EUR
Year
Information last updated27/11/2025 1:40:51

Contact

Information
Phone+34--934 152 121
Emailnci@nci2003.com

Pictures

  • Picture of Nave industrial en alquiler  [2091]
  • Picture of Nave industrial en alquiler  [2091]
  • Picture of Nave industrial en alquiler  [2091]
  • Picture of Nave industrial en alquiler  [2091]
  • Picture of Nave industrial en alquiler  [2091]