Intervención integral sin comprometer la memoria histórica
En Conde de Romanones, 5, en pleno corazón de Madrid, se erige un edificio clásico construido en 1890, de cerca de más de 9.000 metros cuadrados, que ha conseguido sobreponerse a los cambios urbanísticos de la ciudad. Sin embargo, el inmueble, protegido por Patrimonio, debía adaptarse a las nuevas exigencias en materia de eficiencia energética. Todo un desafío para Gaztelu Arquitectura que ha conseguido, no solo intervenir en la propiedad, sino documentar parte de la historia de la ciudad devolviendo, a su vez, su esencia original.
Fachada del edificio de finales del siglo XIX ubicado en Conde de Romanones, 5 de Madrid, que ha sido rehabilitado por Gaztelu Arquitectura.
El problema de la vivienda puede ser una oportunidad para recuperar el esplendor de fincas clásicas que necesitan, eso sí, renovarse y adaptarse a la nueva era. La protección patrimonial no debe ser un ‘hándicap’ sino que representa un interesante desafío para perpetuar parte de la historia de ciudades como Madrid.
Esto es, en cierto modo, la intervención de Gaztelu Arquitectura en el espectacular edificio que se erige desde finales del siglo XIX en Conde de Romanones, 5. Forma parte de la memoria arquitectónica de la capital y ha logrado ‘sobrevivir’ a las exigencias de la vida urbana actual. Una actuación con un doble objetivo: perpetuar la historia de la finca, pero adaptándola a las normativas vigentes en materia de eficiencia energética y sostenibilidad y recuperando, a su vez, su esplendor original. Un modelo que podría replicarse en otras edificaciones que forman parte del patrimonio nacional.
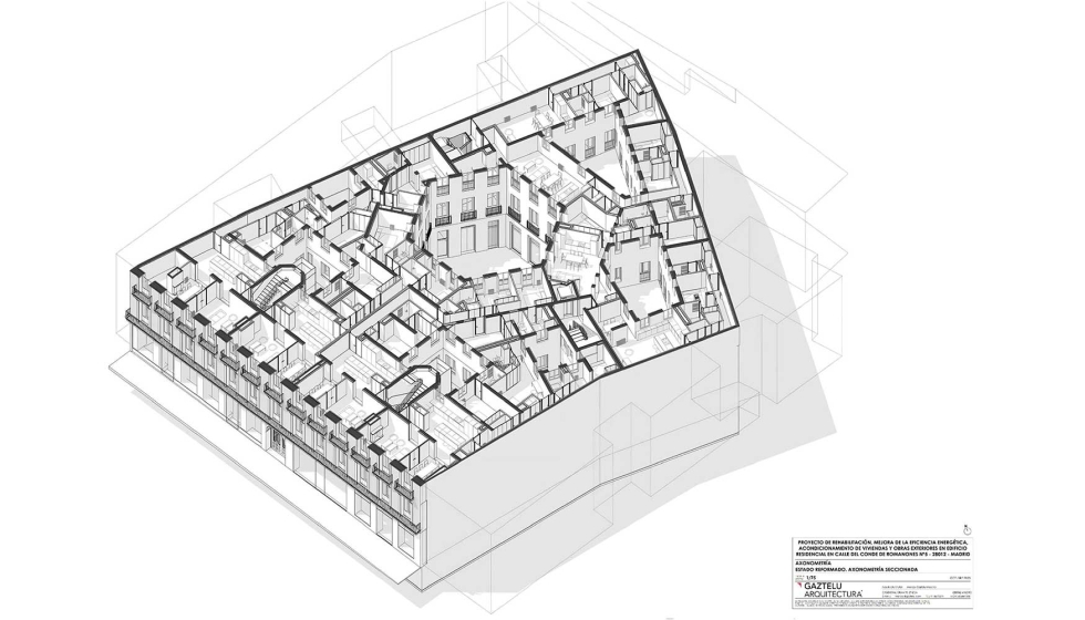
El patio hexagonal es uno de los espacios más remarcables del proyecto, ya que favorece la iluminación natural en todas las viviendas, incluso las interiores.
El inmueble cuenta con una superficie de 9.200 m2 en 32 viviendas y locales comerciales. El proyecto de rehabilitación integral partía de la idea inicial que el edificio se encuentra en el Conjunto Histórico de la Villa de Madrid y está catalogado con Nivel 2 de protección estructural o volumétrica.
Este fue uno de los principales retos del estudio, ya que la edificación conserva elementos de extraordinario valor patrimonial como la fachada principal, el patio central hexagonal, el portal y los núcleos de escaleras, que debían ser preservados y valorados. Por el contrario, la finca presentaba deficiencias en instalaciones, acabados, envolventes y distribución interior, que hacían necesaria una intervención urgente, para mejorar su estado de conservación.
En este sentido, los valores patrimoniales que motivaron la protección del edificio fueron:
- La fachada principal a la calle Conde de Romanones, en ladrillo visto con balconeras de madera, recercados moldurados y balcón corrido en la primera planta.
- El portal de acceso y el pasaje que conduce al patio central, un singular espacio de transición entre la calle y el interior.
- El patio central hexagonal, que se ha tratado como una fachada interior, en recuperar y/o reponer balconeras de madera y cerrajería de forja.
- Los núcleos de escaleras, que no solo cumplen su función de comunicación vertical, sino que constituyen elementos de alto valor arquitectónico en su configuración y acabado.
- Las cubiertas inclinadas de teja árabe sobre estructura de madera, cuya silueta se integra en el perfil histórico del barrio.
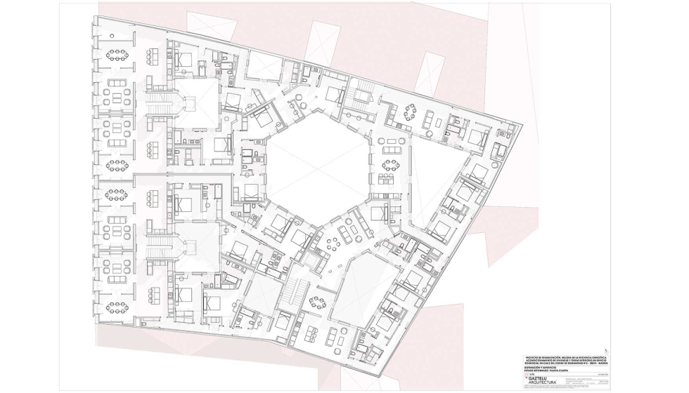
Plano tipo de una de las plantas de viviendas de este edificio regio de más de 9.000 m2. Foto: Gaztelu Arquitectura.
Previa a la intervención, Gaztelu Arquitectura replanteó su diseño a partir de la poca documentación existente, pero con un profundo respeto hacia los elementos originales. De hecho, se han restaurado con técnicas tradicionales, replicando materiales y soluciones propias de la época, devolviendo a cada pieza su integridad y estética.
Una de las primeras intervenciones fue consolidar la estructura de entramado de madera con forjado metálico, ya que en la época la madera era el material principal en construcción “y tal y como se ha tratado el acero en el inmueble daba la sensación que no confiaban que el elemento metálico pudiera ser resistente en aquella época, de ahí la apuesta por este sistema mixto”, comentaba al respecto Isabel Arellano, arquitecta y socia directora de Gaztelu Arquitectura.
Para ello, las nuevas tecnologías han tenido un papel preponderante desde la fase de diseño, a través del escaneo completo del edificio en BIM que, además, presenta una volumetría muy singular, especialmente, en el interior de las viviendas.
“Ha sido un proyecto complejo, con muchas etapas de análisis en la intervención arquitectónica. El propio patio marca su arquitectura hexagonal propiciando que cada estancia sea casi laberíntica. Por ello, lo primero que se hizo fue escanear el edificio a partir de una nube de puntos para disponer de un modelo en BIM. Cuando tienes que conservar materiales, restituir molduras, chimeneas… al final necesitas una imagen de cada estancia del edificio para que cada cambio que sucediera durante la intervención fuera en tiempo real”, añade Isabel Arellano.
El papel de los artesanos también ha sido determinante para reponer y restaurar algunos de los elementos clásicos de la finca, como la recuperación de suelos hidráulicos preexistentes a la intervención, que se han instalado en algunas zonas de las viviendas, o las chimeneas que fueron desmontadas para su restauración antes de volver a colocarse en la cubierta como elemento decorativo.
Intervención sin comprometer su legado patrimonial
Una de las particularidades de esta intervención es que se ha conseguido transformar un inmueble de 1890 para uso contemporáneo en términos de eficiencia energética y nuevos usos, a partir de una rehabilitación integral garantizando la conservación patrimonial.
La intervención más destacada ha sido en la envolvente que estaba protegida, no obstante, se ha podido instalar SATE en los patios interiores mejorando, así, su confort interior y reduciendo las pérdidas energéticas.
Las carpinterías exteriores se sustituyeron por ventanas de madera con doble acristalamiento tipo Climalit y lámina PVB acústica, y también se restauraron las contraventanas interiores como elementos de control solar pasivo.
En cuanto a la climatización y el agua caliente sanitaria (ACS) se optó por la implantación de un sistema de aerotermia centralizado que supuso la instalación de suelo radiante y refrescante en todas las viviendas, sin necesidad de calderas de gas. Para reforzar el sistema en momentos de demanda estival, se reforzó colocando aparatos fancoils o ventiloconvectores en determinadas estancias.
Con esta actuación, se ha mejorado en tres letras la eficiencia energética del inmueble completando la intervención con sistemas que contribuyan a garantizar una alta calidad del aire interior y de confort como la acústica de las viviendas acorde a la normativa CTE-DB-HR.
Redistribución de las viviendas
El proyecto también ha contemplado la redistribución espacial del interior de las viviendas, ya que presentaba un diseño muy acorde a cómo se vivía en el siglo XIX con baños compartidos, estancias ciegas y habitaciones reducidas. En la rehabilitación integral se ha actualizado el programa residencial apostando por estancias abiertas, reordenando zonas como la cocina que se unifica con el salón-comedor para crear un espacio más diáfano; mientras que los dormitorios cuentan con baño en suite, sin alterar la estructura esencial del inmueble.
“Uno de los primeros retos ha sido pasar de viviendas con distribución de 1900 a adaptarnos a la tipología existente, pero modernizándola. Esto ha implicado perder una habitación a favor de ganar un baño, integrar cocinas en salones…”, reconocía Marcos Gaztelu, socio fundador de Gaztelu Arquitectura.
Los suelos hidráulicos restaurados se han incorporado en determinadas estancias, como los baños, para mantener vivo el legado de esta finca con las piezas restauradas. De ahí que una de las particularidades es que no todos los suelos son idénticos en cada una de los inmuebles, ya que no se ha podido recuperar en su totalidad, pero sí se ha conseguido conservar en su mayoría.
“Dentro del compromiso histórico se han conservado y recuperado elementos singulares originales como molduras de escayola, carpinterías interiores, chimeneas y solados tradicionales, integrándolos en las propias viviendas sin alterar su diseño contemporáneo. Estructuralmente, el edificio cuenta con innovación como la madera mixta. Asimismo, nos hemos ido encontrados con soluciones arquitectónicas olvidadas que hemos tenido que volver a aprender, interpretarlas y rehacerlas”, añadía Marcos Gaztelu.
La elección de cada una de las propuestas no ha sido aleatoria. El salón-comedor-comedor se orienta a fachada para facilitar la ventilación cruzada, mientras que la orientación actual favorece la iluminación natural, ya que todas las viviendas dan al patio central, mientras que la zona de día se focaliza hacia la fachada principal para favorecer la ventilación cruzada.
Además, la arquitectura de estas viviendas ha obligado a rediseñar cada una de las tipologías, para exprimir al máximo el espacio existente, pero apostando por su flexibilidad y versatilidad acorde con la demanda actual.
El proyecto de rehabilitación integral de Conde de Romanones 5 demuestra que es posible unir conservación patrimonial, sostenibilidad energética y calidad residencial contemporánea en un único gesto arquitectónico convirtiéndose en un modelo replicable en el patrimonio urbano. Una propuesta que converge con las nuevas tecnologías aplicadas tanto en sistemas de climatización como en domótica, para aumentar su confort y habitabilidad.
“El objetivo ha sido conseguir el mejor resultado sin perder el equilibrio y el gran desafío ha sido intervenir en el patrimonio, renovando y mejorando las condiciones ambientales del propio edificio, pero manteniendo su diseño clásico, revalorizándolo sin perder su esencia”, concluye Isabel Arellano.
FICHA TÉCNICA
- Nombre del proyecto: Rehabilitacion integral de edificio viviendas.
- Autores Proyecto: Gaztelu Arquitectura. Marcos Gaztelu Maestre.
- Arquitectura: Gaztelu Arquitectura.
- Diseño Interior: Gaztelu Arquitectura
- Aparejador: Ángel Bueno. Alarifes Técnicos.
- Ingeniería (Estructura / Acústica / Instalaciones /: Edgardo Ibáñez Prudente- Proyecto de estructura: Aethra Ingenierios – Instalaciones.
- Coordinación de Seguridad y Salud: Ángel Bueno. Alarifes Técnicos.
- Emplazamiento: Conde de Romanones 5.
- Cliente / Promotor: Privado.
- Contratista: Kalam Construcciones y Proyectos
- Fecha del proyecto: 2022.
- Fecha Construcción: Inicio y final de obra mayo de 2023 a febrero de 2025.
- Superficie: 9.200 m2.
INDUSTRIALES:
- Aerotermía – climatizacion y ACS: Daikin.
- Carpinterías de madera: Carimbisa.
- SATE: Sika.
- Pinturas: KEIM.
- Molduras: Escayolas Téllez.

























