Un centro parroquial contemporáneo que se adapta al entorno urbano
Con una superficie construida de 1.696 m² y un presupuesto de 1.680.000 €, el proyecto ha sido desarrollado por el estudio tresunouno, bajo la dirección de los arquitectos Juan José García-Aranda, José Ignacio Braquehais y Sara Solé, junto a un amplio equipo técnico y colaborativo. La ejecución corrió a cargo de BYGGA Ingeniería y Edificación S.L., con soluciones de iluminación de Erco y Luxiona.
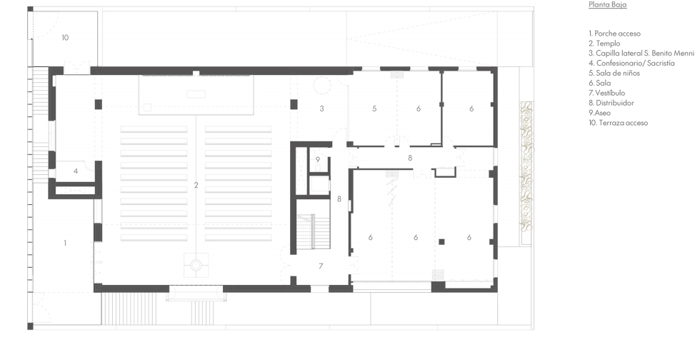
El edificio destaca por su volumen compacto y una imagen sobria basada en el uso extensivo del ladrillo visto, que unifica las fachadas. La disposición volumétrica responde tanto a necesidades litúrgicas como funcionales, albergando un templo, capilla, salas polivalentes, despachos parroquiales y vivienda para la rectoría. Todo ello se organiza en torno a una crujía central de comunicaciones y servicios.
Uno de los elementos icónicos del conjunto es el campanario elevado en la esquina sudoeste, cuya presencia remata la imagen institucional del edificio. El interior del templo se caracteriza por un tratamiento delicado de la luz natural, mediante costillas de aluminio y alabastro, además de techos acústicos de madera y acabados sobrios que refuerzan el carácter sacro del espacio.
La estrategia constructiva contempla cimentación con muros de contención perimetrales, estructura de hormigón armado y soluciones metálicas para los volúmenes singulares. Las cubiertas alternan soluciones planas invertidas y una inclinada sobre el templo, rematada con bandejas de zinc pigmentado.
Los materiales y acabados, seleccionados por su durabilidad y austeridad expresiva, incluyen carpinterías de aluminio con rotura de puente térmico, pavimentos cerámicos extrusionados, techos de cartón-yeso y elementos móviles para la flexibilidad de los espacios.
El diseño presta especial atención a la relación con el espacio público y al aprovechamiento del reducido entorno libre, estableciendo una continuidad espacial entre los diferentes accesos, porches y niveles del complejo.
De este modo, el ladrillo visto se extiende por todas las fachadas para potenciar la unidad del conjunto. Con similar planteamiento una única baldosa cerámica se coloca en la mayoría de los espacios del edificio. En cambio, los revestimientos interiores de ladrillo visto dan continuidad a la materialidad exterior.
Para tamizar la luz, los huecos corridos sobre la zona del presbiterio y coro del templo incorporan unas costillas ejecutadas a base de panel de aluminio texturizado. En la zona del presbiterio estas costillas se revisten con alabastro y dotan de solemnidad al ámbito del altar como centro del espacio.
La ligera elevación del presbiterio de templo y capilla, la elección de un pavimento pétreo (también bajo la pila bautismal) y los revocos dorados en los que destacan las pinturas murales del programa iconográfico y en los que se integra el sagrario, aluden también a la primacía litúrgica de estos espacios.
El tratamiento de los espacios libres se ha proyectado con la idea de permitir la comunicación entre todos ellos. De este modo, es posible rodear perimetralmente todo el edificio, comunicando los distintos niveles y espacios exteriores de tal modo que se facilita el uso del reducido espacio libre que resulta de las condiciones de posición de la edificación.
Además, la existencia de un pequeño parque público contiguo al solar permite que el edificio adquiera una posición de esquina que facilita su visibilidad.
Iluminación sacra
Uno de los aspectos más destacados del proyecto es el cuidado estudio de la luz y los espacios sacros, para crear un ambiente agradable para las distintas estancias.
Desde los espacios ajardinados de la vía Lusitana se accede al templo a través de un amplio porche exterior que abre a la zona bajo el coro. En el centro de este espacio, de altura más ajustada y con un mirador sobre el parque, se ubica la pila bautismal enfrentada al altar y referenciada al mismo con una línea marcada en el pavimento. Este espacio más bajo articula a su vez el acceso exterior con la crujía interior de comunicaciones.
Una fachada sencilla, pensada como fondo visual del arbolado que jalona el paseo, integra en la propia fábrica una gran cruz que compone una fachada rematada con un elemento de coronación con la rotulación del complejo.
Vinculado al nivel inferior, y con acceso desde la calle Catorce Olivas a través de otro porche cubierto, se distribuye el resto del programa (capilla, salas de reunión, despacho parroquial y rectoría). La posición de la capilla y algunas salas en este nivel permiten un funcionamiento parcial del complejo cuando las necesidades de uso no demandan la apertura del resto de espacios en otras plantas.
En la esquina sudoeste se ha proyectado, elevándose por encima de las cotas de cubierta la estructura que alberga el campanario y la cruz. Su altura y posición significan la presencia del Centro Parroquial en el lugar y es, junto la ligera elevación de la cubierta del templo, el único elemento que destaca sobre la rigurosa volumetría del edificio.
FICHA TÉCNICA
- Cliente: Arzobispado de Madrid.
- Tipo de obra: Obra nueva equipamiento.
- Finalización: 2023.
- Arquitectos: Juan José García-Aranda, José Ignacio Braquehais, Sara Solé.
- Equipo del proyecto: Marcos Jiménez, Laura Cuadrillero, Carlota Alvarado, Carmen Ortega, Isabel Manso, Inmaculada Gil, Carmen Fernández, Celia García, Pilar Canto (auxiliar).
- Dirección de ejecución: Luis Martín, Juan Pedro Paredes.
- Estructura: José Alberto Palomino.
- Instalaciones: GD-Inco.
- Constructora: Bygga.
- Superficie útil: 1.480,29 m2.
- Superficie construida: 1.696,30 m2.
- Fotografía: Imagen Subliminal (Miguel de Guzmán + Rocío Romero).








































































