Wicona aporta sus fachadas en la rehabilitación de un edificio administrativo en Barcelona
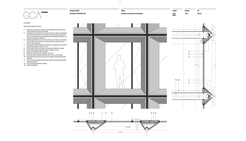
El despacho GCA Architects ha sido el encargado de la rehabilitación de la fachada de un edificio antiguo construido en los años 70, en el distrito del Eixample de Barcelona. La fachada preexistente estaba formada por un conjunto de elementos estructurales verticales y horizontales dispuestos en una retícula que soportaba los paneles acristalados y opacos. Uno de los principales objetivos fue el de generar una nueva identidad, mejorando al mismo tiempo el confort y el bienestar de los usuarios. Para lograrlo, se ha empleado la fachada stick Wictec 50 de Wicona, un sistema de montantes y travesaños que ofrece una amplia gama de variantes para adaptarse a todo tipo de exigencias constructivas. La solución cuenta con un mínimo perfil visto, de tan sólo 50 mm, y una profundidad de perfiles, que oscilan entre los 50 y los 260 mm. Además, el tamaño de los huecos se ha ampliado, incrementando así la superficie acristalada y la transmisión luminosa al interior.
Desde el punto de vista constructivo, el sistema modular facilita un montaje ágil en obra y posibilita, además, el desmontaje y la reciclabilidad futura de los materiales empleados. En cuanto a su integración urbana, el zócalo y el cuerpo principal del edificio se ajustan a la escala de los edificios del entorno, mientras que la coronación se resuelve con un sistema de lamas verticales que generan una doble piel y aportan privacidad y control solar. El zócalo y la coronación comparten lenguaje arquitectónico, en sintonía con la composición clásica de los edificios de la zona.
La incorporación de elementos practicables y la liberación de las esquinas favorecen la ventilación cruzada natural. Se han instalado las ventanas Wicline 75 evo hoja oculta de la Wicona que, gracias a un junquillo especial fijado directamente en la zona de rotura de puente térmico, se consigue una reducida elevación del marco. La solución presenta una mejora de la ratio entre el marco y el vidrio, además de lograr una Uw global favorable y un incremento de luz natural en las estancias donde se instala.
Según se explica desde GCA Architects, “se ha trabajado el hueco como un sistema ligero modular que reinterpreta la antigua retícula, creando una fachada ventilada terminada en composite, que actúa como un colchón térmico y acústico, optimizando la eficiencia general del conjunto”.
Perfiles de aluminio Hydro Circal 75R con baja huella de carbono
El nuevo edificio responde a criterios de sostenibilidad energética y económica. Asimismo, se ha diseñado siguiendo como referencia el estándar Well, que pone el foco en el bienestar de los usuarios. Con el objetivo de crear un entorno de trabajo saludable y eficiente, se han tenido en cuenta aspectos como la acústica, la iluminación y el confort térmico, empleando soluciones que reducen el consumo y mejoran la comodidad.
Las soluciones WIcona instaladas en el edificio van en concordancia con ello, ya que están fabricadas con aluminio reciclado certificado posconsumo Hydro Circal 75R proveniente, al menos, de un 75% de chatarra posconsumo, y con una huella de carbono de 1,9 CO2eq. /kg de aluminio, un dato que contrasta con la media de aluminio primario consumido en Europa que, actualmente, es del 10 CO2eq. /kg de aluminio.
Los sistemas Wicona empleados no solo favorecen la eficiencia energética del nuevo edificio administrativo gracias a sus elevadas prestaciones, que contribuyen al confort de los usuarios, sino que también ayudan a promover la sostenibilidad y la circularidad del complejo.
Un diseño interior renovado para una administración más accesible a la ciudadanía
El complejo albergará ahora la nueva sede del Departament de Salut de la Generalitat, cuyo diseño interior y renovación ha estado a cargo de los estudios Elastiko Architects y Forgas Arquitectes, dotándolo de una imagen actual y moderna, que refleja la voluntad de una administración pública abierta y al servicio de la ciudadanía.
Los nuevos espacios de oficinas, flexibles y colaborativos, promueven nuevas formas de trabajar con especial atención en el bienestar de los usuarios. La intervención se ha centrado en transformar la estructura original mediante la eliminación de la escalera posterior del edificio para crear un único núcleo central de comunicación y una nueva fachada orientada hacia el patio interior de manzana. Esta decisión favorece una mayor entrada de luz natural desde el sur, la ventilación natural cruzada y la recuperación de las vistas hacia esa zona.
Esquemas de plantas. © Las soluciones WIcona instaladas en el edificio van en concordancia con ello, ya que están fabricadas con aluminio reciclado certificado posconsumo Hydro Circal 75R proveniente, al menos, de un 75% de chatarra posconsumo
“El edificio potencia los espacios de trabajo flexibles y colaborativos, con especial atención en el bienestar de los trabajadores y con una imagen actual y moderna, reflejo de una administración pública abierta y al servicio de la ciudadanía”, se afirma desde Elastiko Architects.
La distribución en planta queda organizada en torno al núcleo central compacto, que concentra los espacios de colaboración y vertebra el edificio. De esta manera, se logra una planta diáfana y de gran flexibilidad, en la que las formas orgánicas del núcleo aportan una mayor continuidad visual al espacio y facilitan la circulación.
- Proyecto: Edificio administrativo c/Aragón 330.
- Ubicación: Barcelona.
- Despachos de arquitectura: GCA Architects (rehabilitación fachada principal), Elastiko Architects + Forgas Arquitectes (rehabilitación interior e interiorismo).
- Fachadista: Cristalería Martos.
- Soluciones Wicona empleadas: Fachada Wictec 50, ventanas Wicline 75 evo hoja oculta.
- Fotografía: Simón García.





























































































